Building a Brighter Future for PCAS

The new Piatt County Animal Shelter will be a modern, nearly 5,000-square-foot facility designed with animal health, safety, and comfort at its core. We broke ground in fall 2025, with construction scheduled to begin in April 2026, pending additional funding needed for final construction enhancements. The shelter will be located at 1203 Raymond Road in Monticello, Illinois, directly across the street from the Robert Milligan Memorial Dog Park, creating a welcoming and accessible space for our community and the animals we serve.

Thoughtful design features include natural light throughout the building. Sanitation and disease prevention are central to the shelter’s layout, with cat and dog quarantine areas for sick animals, reducing stress by allowing animals to remain in familiar surroundings. Dedicated isolation areas for new intakes ensure animals can be properly assessed before joining the general population.

Every donation—big or small—helps us create a healthier, safer future for the animals who rely on us. Together, we can make this new shelter a reality. Thank you for being part of our mission.


Donate Online

Please indicate “Building Fund” in the additional information section of the donation form.

Make a Donation

Donate on Venmo

Scan or click the QR code below
or search for @PCAS7227 on the Venmo App.


Outside Building Design

Exterior view of the future Piatt County Animal Shelter at 1203 Raymond Road, designed to provide a safe, welcoming, and modern space for animals and the community.

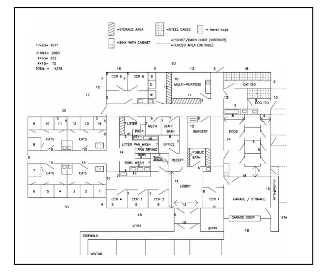
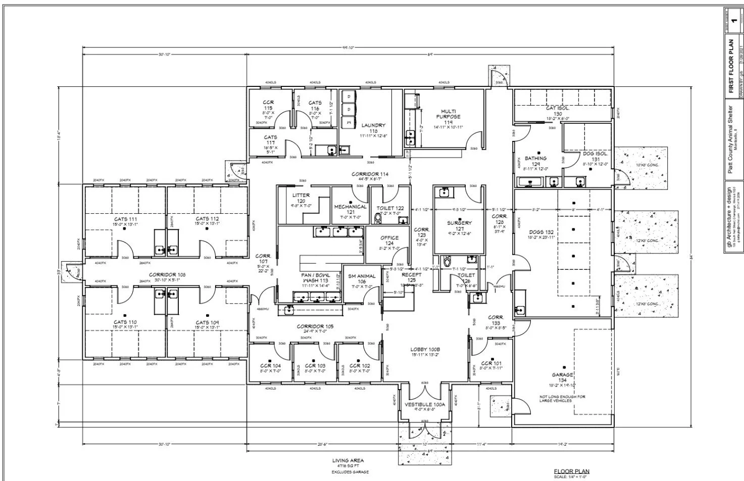
Inside Floor Plan

Interior floor plan highlighting a nearly 5,000-square-foot layout focused on animal health, natural light, sanitation, and flexible spaces for quarantine and care.